The Brief

Following the success of their practices in Liverpool and Dubai, Dr Esho approached Ben Johnson Interiors as a Northeast contractor to help with the roll out of their cosmetic clinics. They had found premises on the high street in Gosforth and needed help with the space planning, fitout and furniture.

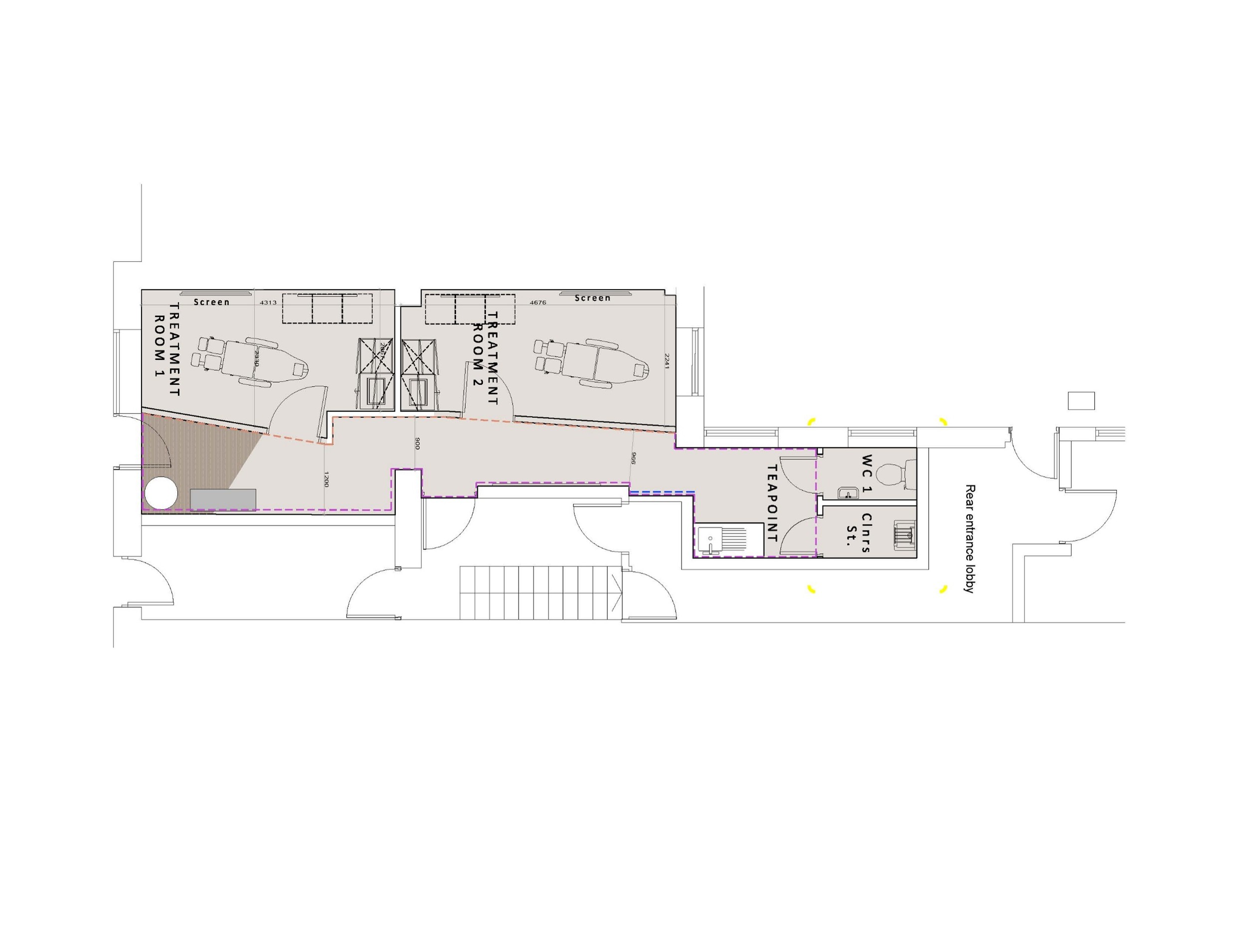
The premises was under refurbishment by the landlord, and therefore the team needed advice negotiating with their landlord on CAT A handover and the different scope of works that both the contractor and the landlord’s contractor would complete. The scope of works that fell to Ben Johnson Interiors to undertake included fitting out and furnishing the waiting area, treatment rooms, toilets, staff wellbeing area and some external shop front works.

Sector
Healthcare
Location
North East
Business
Medical Aesthetics
Date
2024
Size
2,000 sqft
Duration
6 Weeks

The Solution

With all cosmetic clinic design and cosmetic clinic fit out, finish selection is critical. Dr Esho’s facility needed to look modern, stylish, high quality and yet still medically compliant. The finishes reflected the ESHO brand and were in line with both the Liverpool and Dubai cosmetic clinics. A selection of vinyl flooring was used throughout to create a feature and identify different zones within the space.

Feature wall finishes were also important to create drama and style, the design included wooden acoustic slats in the corridor areas with integrated strip lighting to create a striking effect. An additional signature in all ESHO practices is a feature brushed concrete wall, finished with branded signage.

 

All treatment rooms included an adjustable treatment chair, sink, secure storage and a small fridge. Feature open shelves were also used in the treatment rooms to display products and give the rooms a more homely, less clinical feel.

Achieving good acoustics between the treatment rooms to maintain client confidentiality was vital; all rooms were built slab to slab, with the feature slatted wall used to create a hidden door effect on all the treatment rooms for more drama and additional privacy.

Ben Johnson Interiors had to work closely with Dr Esho’s nominated contractors, which included an AV company who were providing smart marketing screens and a music system including speakers for ambience.

The client experience is key for ESHO clinics and is further enhanced by including a fragrance provider that releases soothing fragrances into the treatment rooms, creating a calming and relaxing environment. We also had to work hand in hand with Dr Esho’s nominated signage provider, as a lot of the signage included a light box that had to be installed by our expert teams.

The Finished Project

CULTSKIN CLINIC BY ESHO MD Northeast is the place to be for cosmetic treatments, providing a tranquil, relaxed interior which can be adjusted to meet each individual client’s requirements. The Ben Johnson Interiors team created a stylish yet clinical space for the ESHO team and their clients, with the scope of works including interior design, creating new partitioning, installing tea points, as well as creating WCs; ensuring all treatment rooms had sinks, all electrical, lighting and mechanical works, new flooring and decoration throughout, joinery details, external shop front works and furniture supply.

Back to top